Straßenansicht des Wohnquartiers Trapezblock in Bochum mit Passanten

Bauvorhaben

Wohnquartier Trapezblock
99 Wohneinheiten

Ort

Bochum

Projektzeitraum

2023-2026

Architekturleistungen

LPH 1-5

Grundriss des Erdgeschosses im Wohnquartier Trapezblock in Bochum
Wohnquartier Trapezblock mit begrüntem Innenhof
Skizze eines Wohnkomplexes in Bochum
Straßenansicht des Wohnquartiers Trapezblock
Straßenansicht des Wohnquartiers Trapezblock
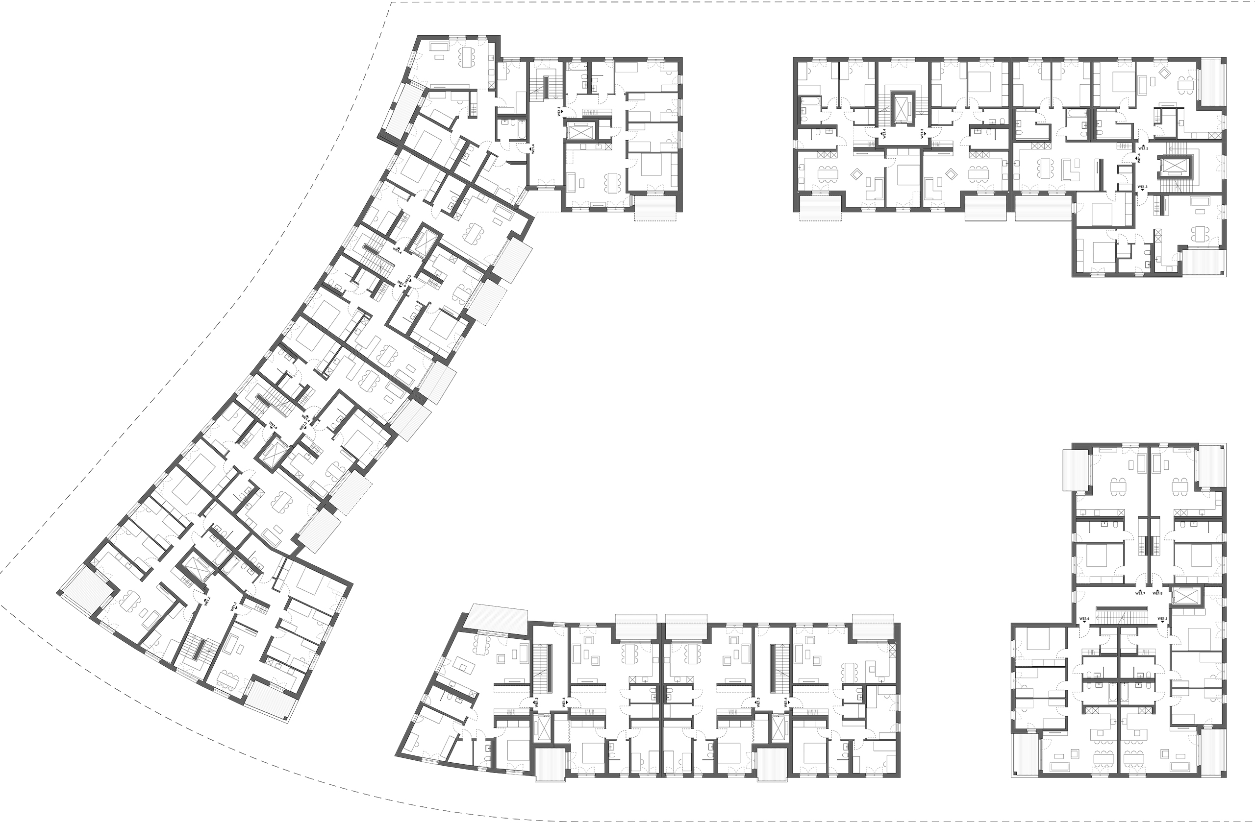
Grundriss des Obergeschosses im Wohnquartier Trapezblock
Balkonfassade des Wohnquartiers Trapezblock
Balkonfassade des Wohnquartiers Trapezblock
Detailansicht der Terrassen im Innenhof des Wohnquartiers Trapezblock
3D-Visualisierung des gesamten Wohnquartiers Trapezblock