Wohnbereich mit schwarzer Wand, heller Eichenboden und Ausblick in den Garten

Bauvorhaben

Wohnhaus
Einfamilienhaus

Ort

Mülheim

Projektzeitraum

2015-2016

Architekturleistungen

LPH 1-9

Auszeichnungen

BDA Auszeichnung guter Bauten 2017

Gartenansicht mit großformatigen Fensterflächen und dunkler Kubatur
Frontansicht des Wohnhauses bei Abendlicht mit beleuchteten Fenstern
Straßenansicht des Einfamilienhauses mit dunkler Putzfassade
Schnittdarstellung des Einfamilienhauses mit offener Galerie und drei Ebenen
Offene Küche mit Kochinsel, weißem Mobiliar und großen Glasflächen zum Garten
Grundriss Erdgeschoss eines Einfamilienhauses mit Küche, Essbereich und Wohnraum sowie angrenzender Garage
Helles Esszimmer mit großem Fenster zum Garten
Essbereich mit massiver Holztafel, schwarzer Wand und offener Küche
Grundriss des Obergeschosses mit zentralem Flur und drei Schlafzimmern
Treppenhaus mit dunkler Wandgestaltung und Holzstufen
Kinderzimmer mit Spielpodest, Sitznische und hellen Farben
Helles Kinderzimmer mit Spielecke, Himmelzelt und Eichenparkett
Jugendzimmer mit farbigen Akzenten und minimalistischer Möblierung
Modernes Bad mit bodentiefer Dusche und Doppelwaschtisch
Badezimmer mit Wanne, grauen Fliesen und zwei Fenstern
Lichtdurchflutetes Bad
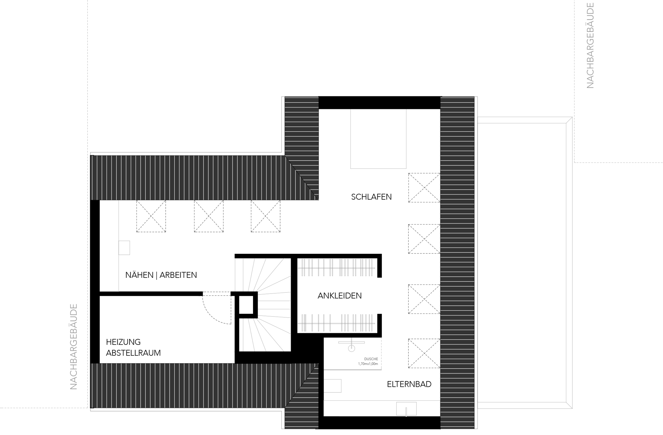
Grundriss des Dachgeschosses mit Schlaf- und Ankleidebereich
Flur im Obergeschoss mit schwarzer Wand und Teppichboden
Waschtisch mit Holzwaschtisch und hellen Fliesen
Schlafzimmer im Dachgeschoss mit offenem Badbereich und schrägen Decken
Straßenansicht des Einfamilienhauses mit dunkler Giebelwand