Seitenansicht des Einfamilienhauses mit moderner Dachform

Bauvorhaben

Wohnhaus
Einfamilienhaus

Ort

Mülheim

Projektzeitraum

2019-2021

Architekturleistungen

LPH 1-5

Frontansicht des Einfamilienhauses mit Eingang und Fensterstruktur
Lageplan mit Grundriss des Einfamilienhauses mit Grundstücksaufteilung und Zufahrt
Rückansicht des Einfamilienhauses mit klarer Fassadengliederung
Gebäudeschnitt eines Einfamilienhauses mit Darstellung der Raumaufteilung
Grundriss des Obergeschosses eines Einfamilienhauses
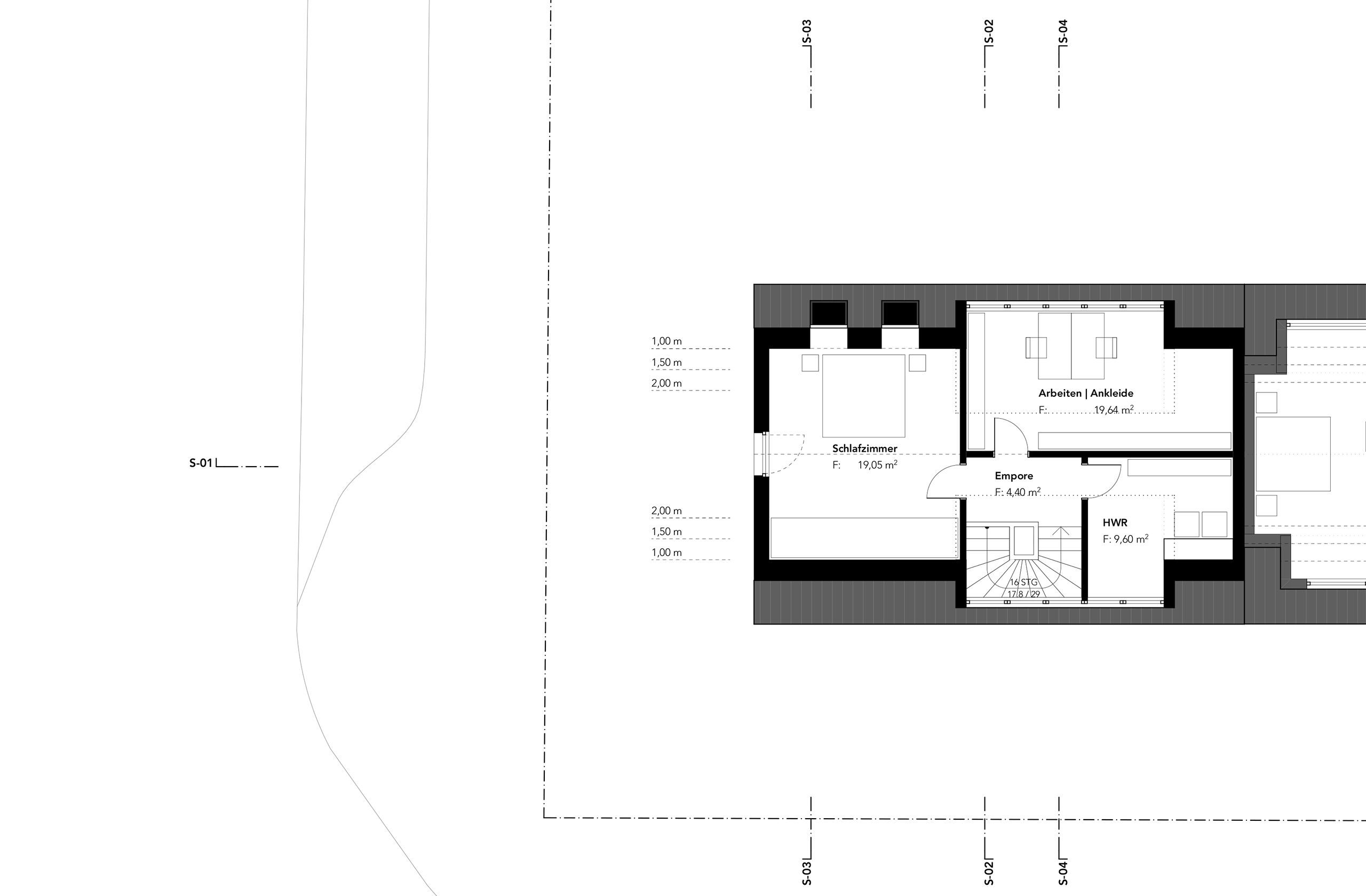
Grundriss des Dachgeschosses mit Wohn- und Schlafräumen