Gesamtansicht des Wohnhauses BW168

Bauvorhaben

Wohnhaus
Einfamilienhaus mit Einliegerwohnung

Ort

Mülheim

Projektzeitraum

2015-2017

Architekturleistungen

LPH 1-9

Ansicht des Wohnhauses BW168 mit moderner Kubatur
Ansicht des Wohnhauses BW168 mit integrierter Garage
Fassade des Wohnhauses BW168 mit seitlichem Gartenbereich
Straßenansicht des Wohnhauses
Terrassenansicht des Wohnhauses BW168 mit überdachtem Außenbereich
Terrassenansicht des Wohnhauses BW168 mit überdachtem Außenbereich
Terrassenansicht des Wohnhauses BW168 mit überdachtem Außenbereich
Küche mit Kochinsel und Einbaubeleuchtung
Innenansicht des Wohnhauses BW168 mit moderner Küche und Holzfußboden
Offene Küche im Wohnhaus BW168 mit Kochinsel
Badezimmer im Wohnhaus BW168 mit Holzverkleidung und Fenster
Badezimmer des Wohnhauses BW168 mit Badewanne und Fenster
Treppenhaus des Wohnhauses BW168 mit natürlicher Belichtung
Badezimmer des Wohnhauses BW168 mit Waschbecken
Badansicht mit Waschbecken und WC
Badezimmer des Wohnhauses BW168 mit bodengleicher Dusche
Treppenaufgang mit Blick aus dem Fenster
Schnittdarstellung mit Höhenstaffelung des Wohnhauses
Schnittdarstellung des Wohnhauses
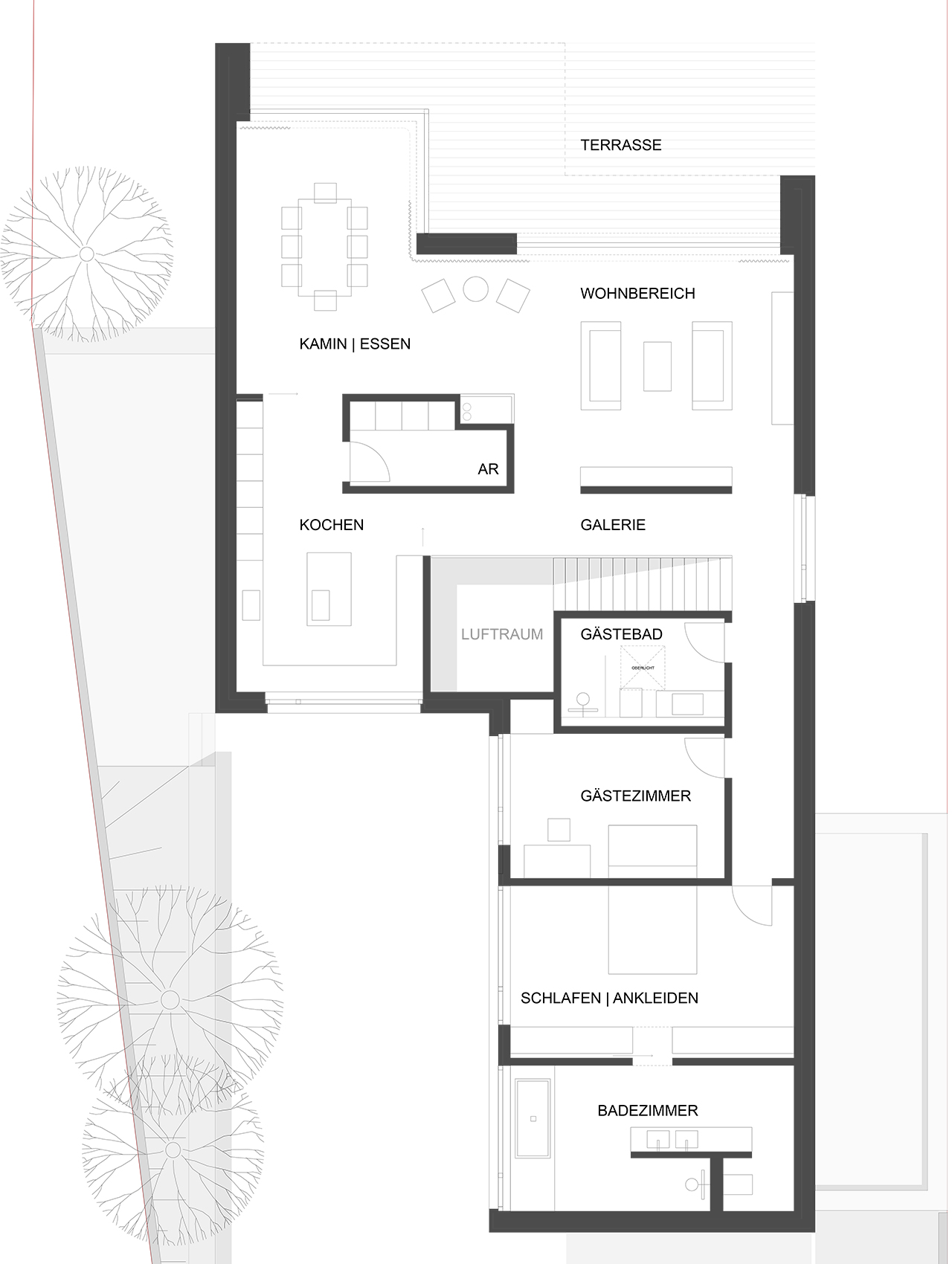
Grundriss des Wohnhauses
Grundriss des Wohnhauses