Rückansicht der Wohnbebauung mit Fensterachsen und Satteldach

Bauvorhaben

Wohbebauung
Doppelhaus

Ort

Mülheim

Projektzeitraum

2019-2020

Architekturleistungen

LPH 1-4

Frontansicht der Wohnbebauung mit klar strukturierter Klinkerfassade
Längsschnitt der Wohnbebauung mit Treppenhaus und Belichtung
Straßenansicht einer modernen Wohnbebauung mit Klinkerfassade
Gebäudeschnitt mit Raumaufteilung und Treppenverlauf
Luftbild mit Lage und Gebäudevolumen der Wohnbebauung
Grundriss des Untergeschosses mit Nebenräumen
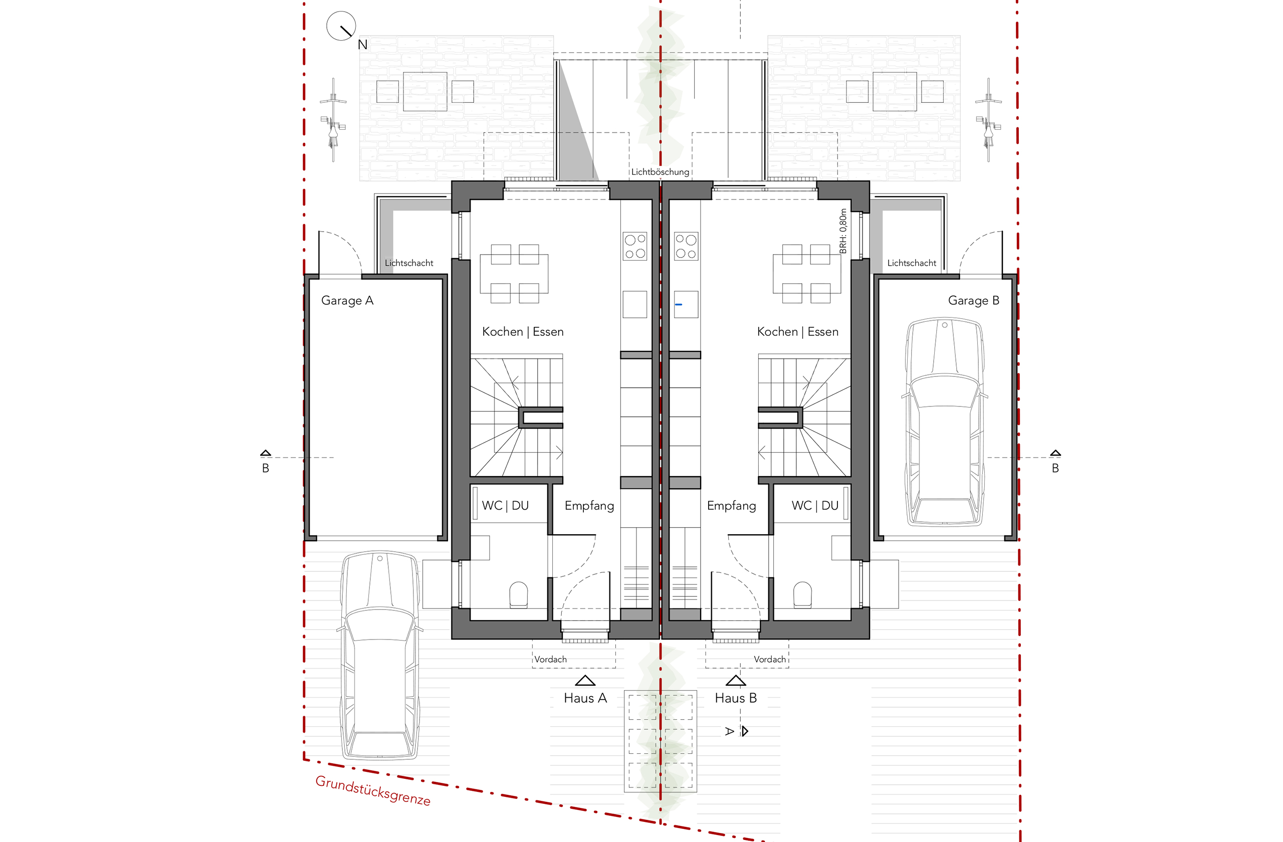
Grundriss des Erdgeschosses mit Eingangs- und Wohnbereich
Grundriss des Obergeschosses mit Raumaufteilung der Wohnbebauung
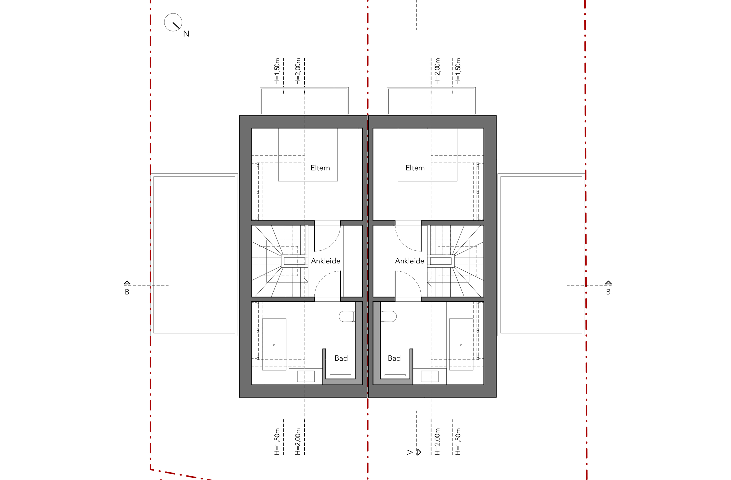
Grundriss des Dachgeschosses einer Wohnbebauung mit zwei Wohneinheiten