Giebelfassade des Mehrfamilienhauses mit Eingangsbereich

Bauvorhaben

Wohnbebaung
Mehrfamilienhaus mit 3 Wohneinheiten

Ort

Mülheim

Projektzeitraum

2019-2022

Architekturleistungen

LPH 1-5

Seitenansicht des Mehrfamilienhauses mit Umgebung
Straßenperspektive auf das Mehrfamilienhaus mit klarer Fassadengliederung
Rückansicht des Mehrfamilienhauses mit Gartenbereich
Giebelseite des Mehrfamilienhauses
Außenansicht des Mehrfamilienhauses mit Staffelgeschoss
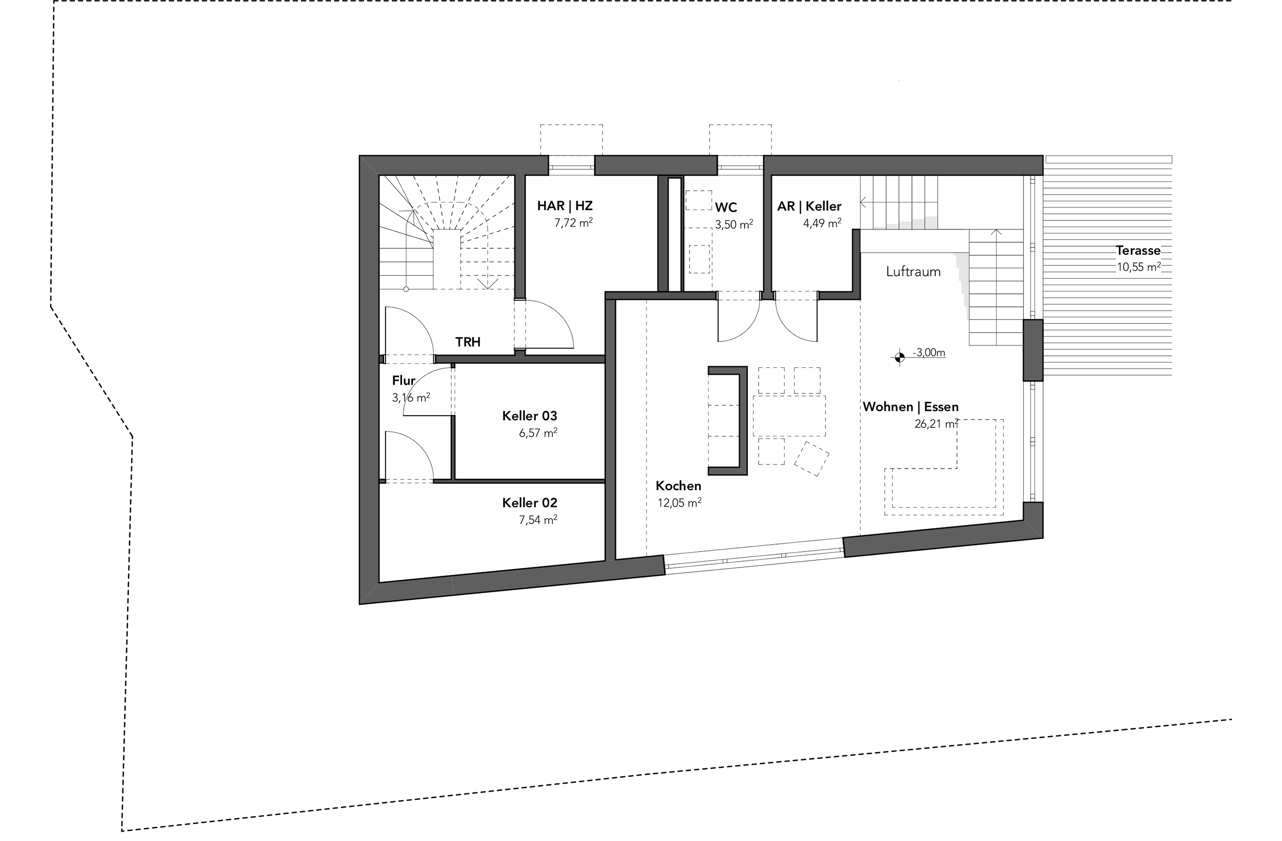
Grundriss des Kellergeschosses des Mehrfamilienhauses
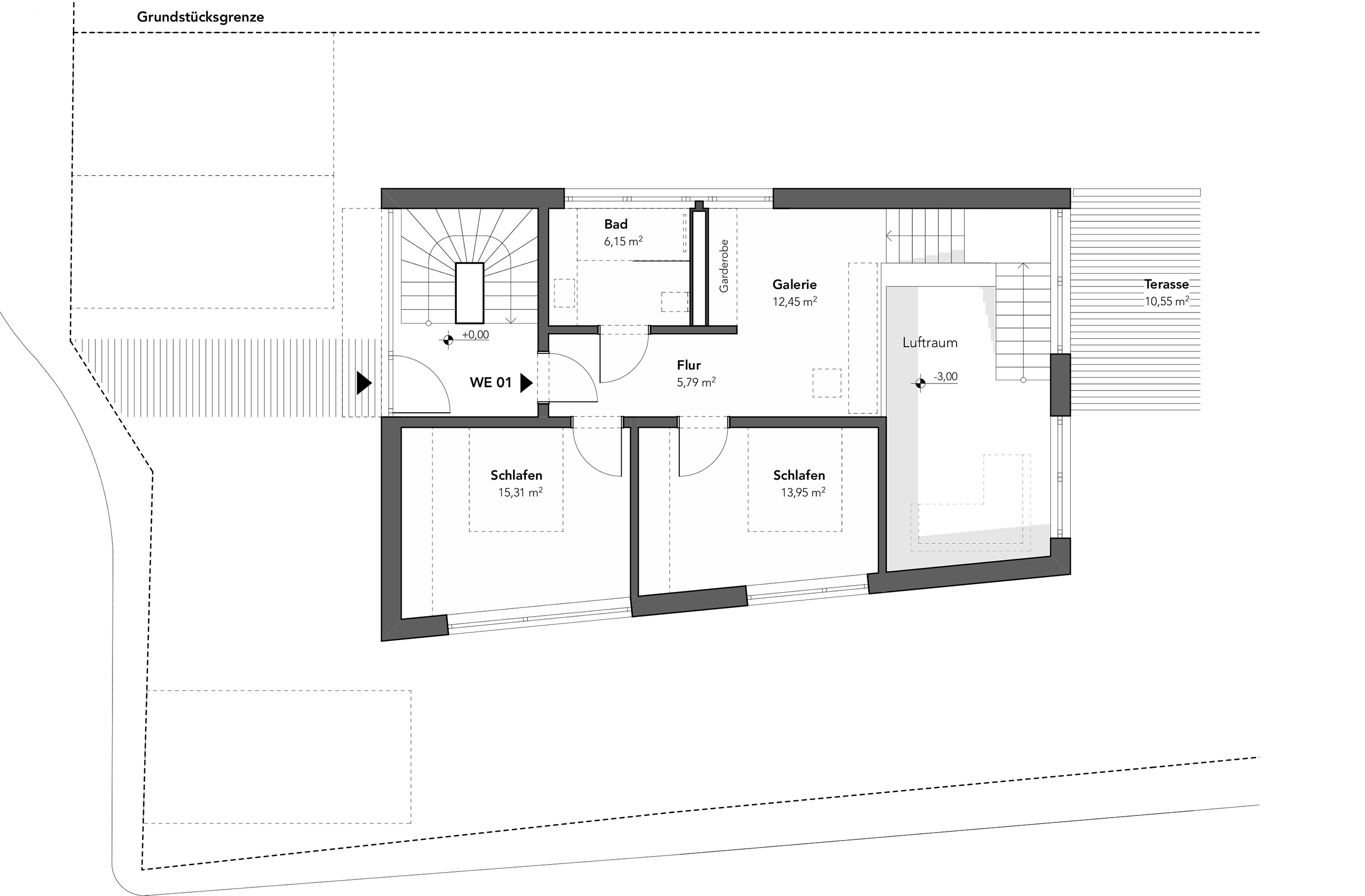
Grundriss des Erdgeschosses mit Wohn- und Schlafbereichen
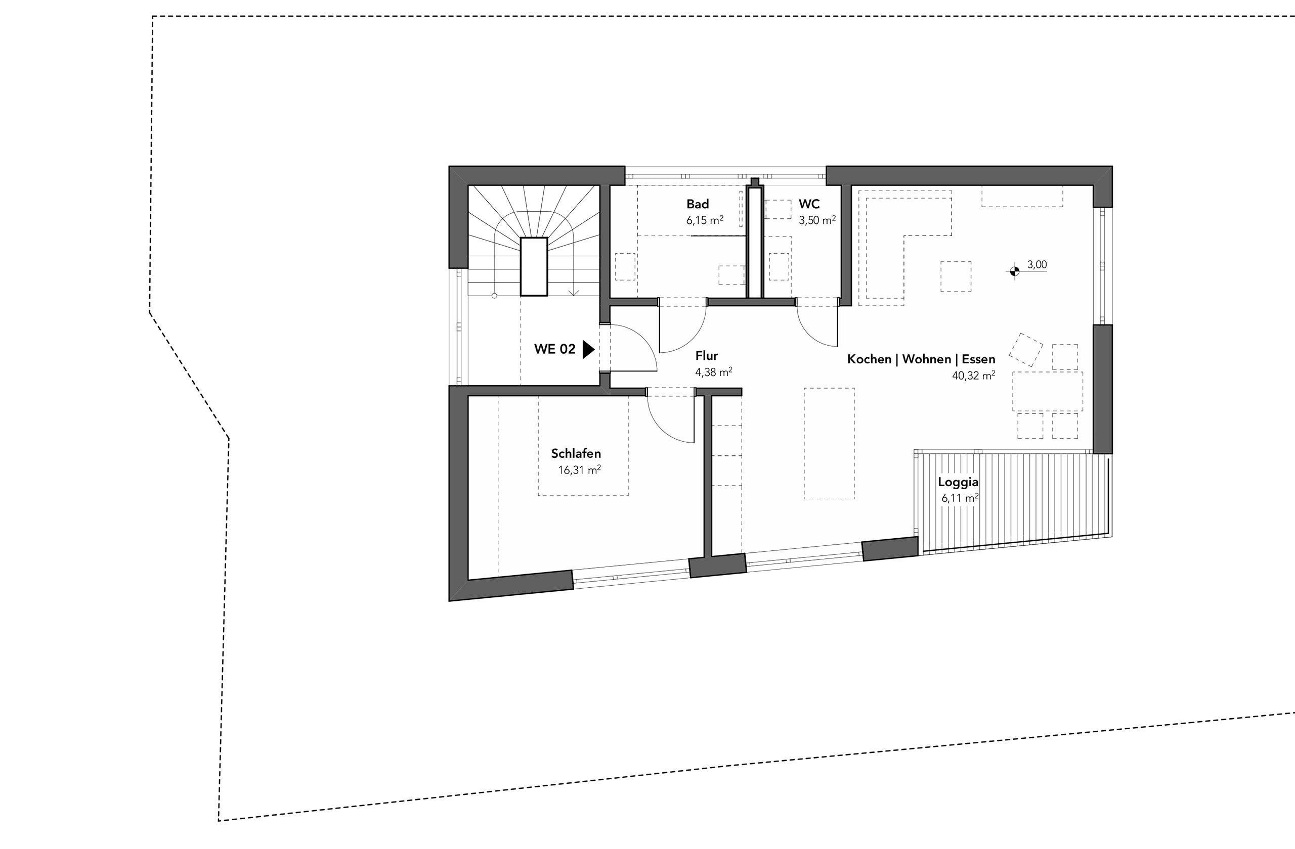
Grundriss Obergeschoss mit Wohn- und Schlafbereichen
Grundriss des Dachgeschosses mit Wohn- und Schlafbereichen
Perspektive des Mehrfamilienhauses mit vorgelagerter Grünfläche