Ansicht der Wohnbebauung FS21 in Mülheim

Bauvorhaben

Wohnbebauung
Doppelhaus

Ort

Mülheim

Projektzeitraum

2019-2020

Architekturleistungen

LPH 1-4

Ansicht der Wohnbebauung FS21 Doppelhaus in Mülheim
Ansicht der Wohnbebauung FS21 Doppelhaus in Mülheim
Ansicht der Wohnbebauung FS21 in Mülheim
Grundriss des Erdgeschosses der Wohnbebauung FS21 in Mülheim
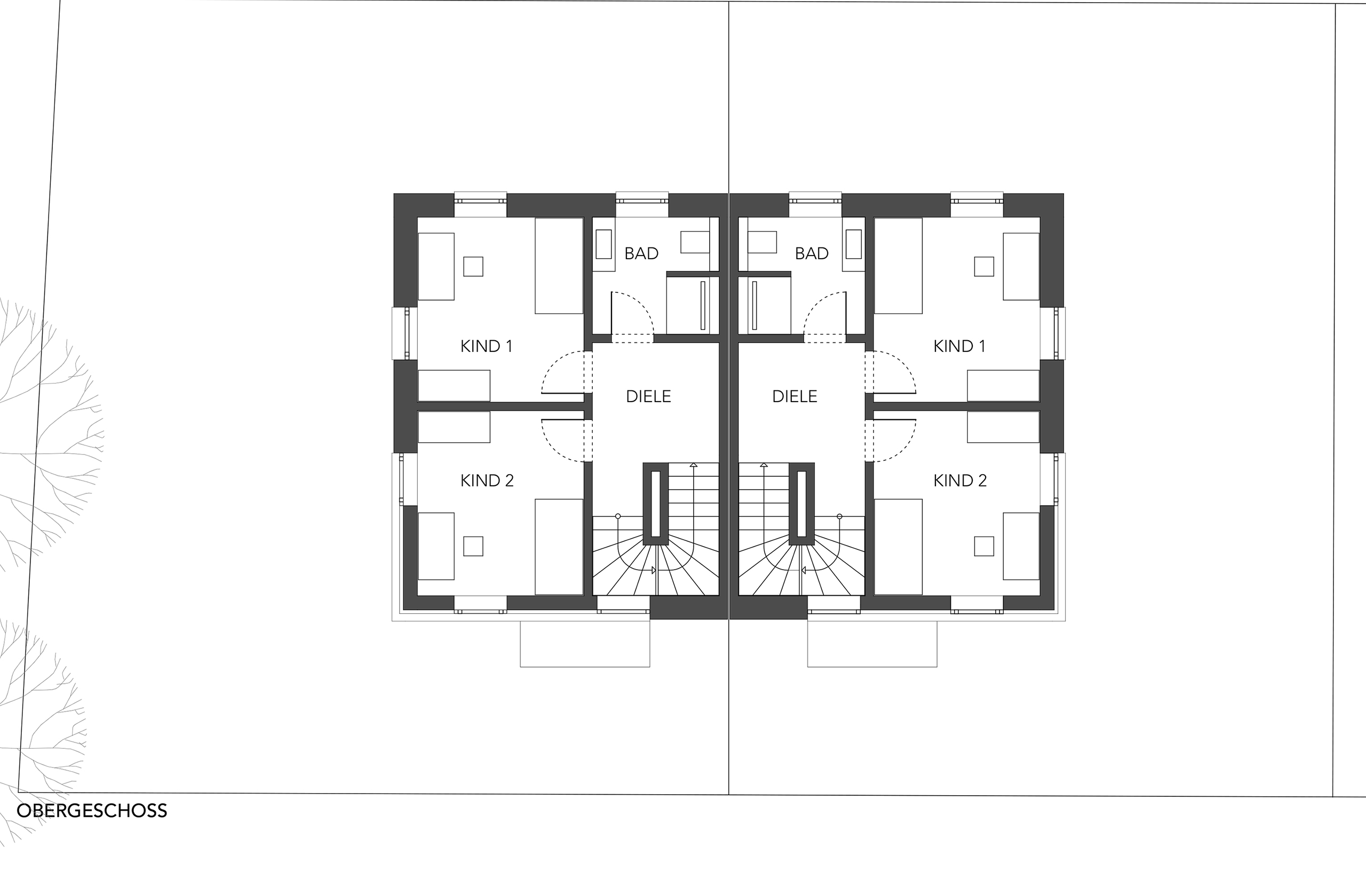
Grundriss des Obergeschosses der Wohnbebauung FS21 in Mülheim
Grundriss des Dachgeschosses der Wohnbebauung FS21 in Mülheim
Längsschnitt durch die Wohnbebauung FS21 in Mülheim