
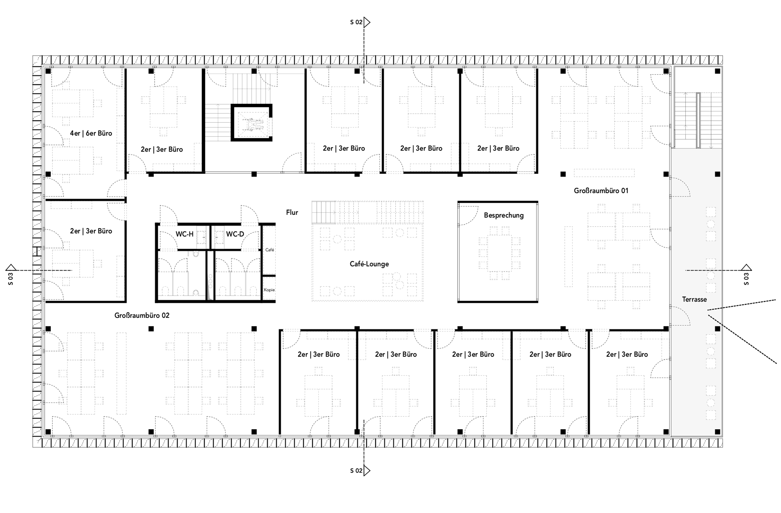
Bauvorhaben
Hauptverwaltung pitstop.de
Verwaltungs- und Schulungsgebäude
Ort
Mülheim
Projektzeitraum
2019-2022
Architekturleistungen
LPH 1-5, gestalterische Oberleitung























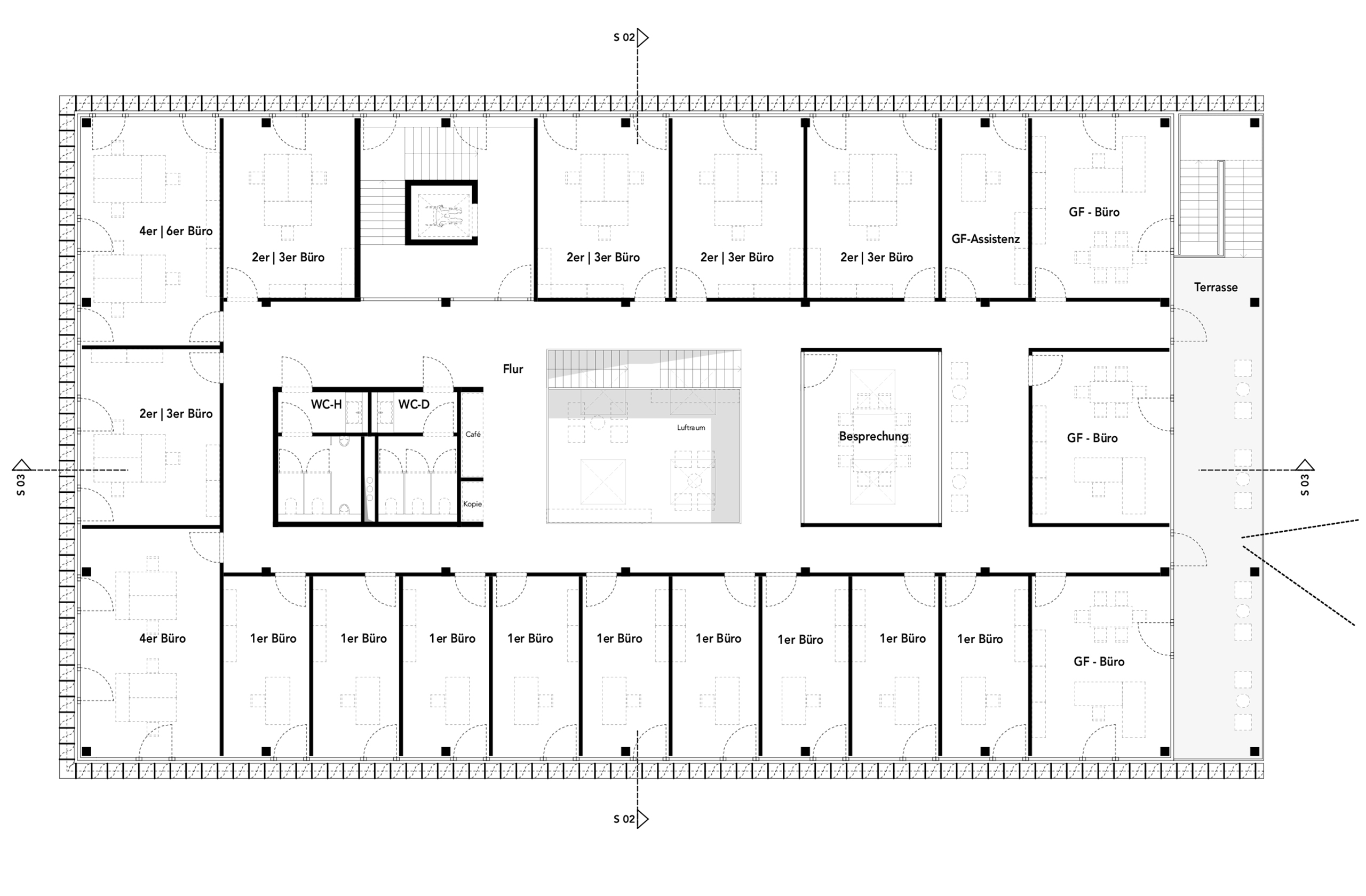
Hauptverwaltung pitstop.de
Verwaltungs- und Schulungsgebäude
Mülheim
2019-2022
LPH 1-5, gestalterische Oberleitung





















