
Bauvorhaben
Erweiterung der GGS Hölterschule
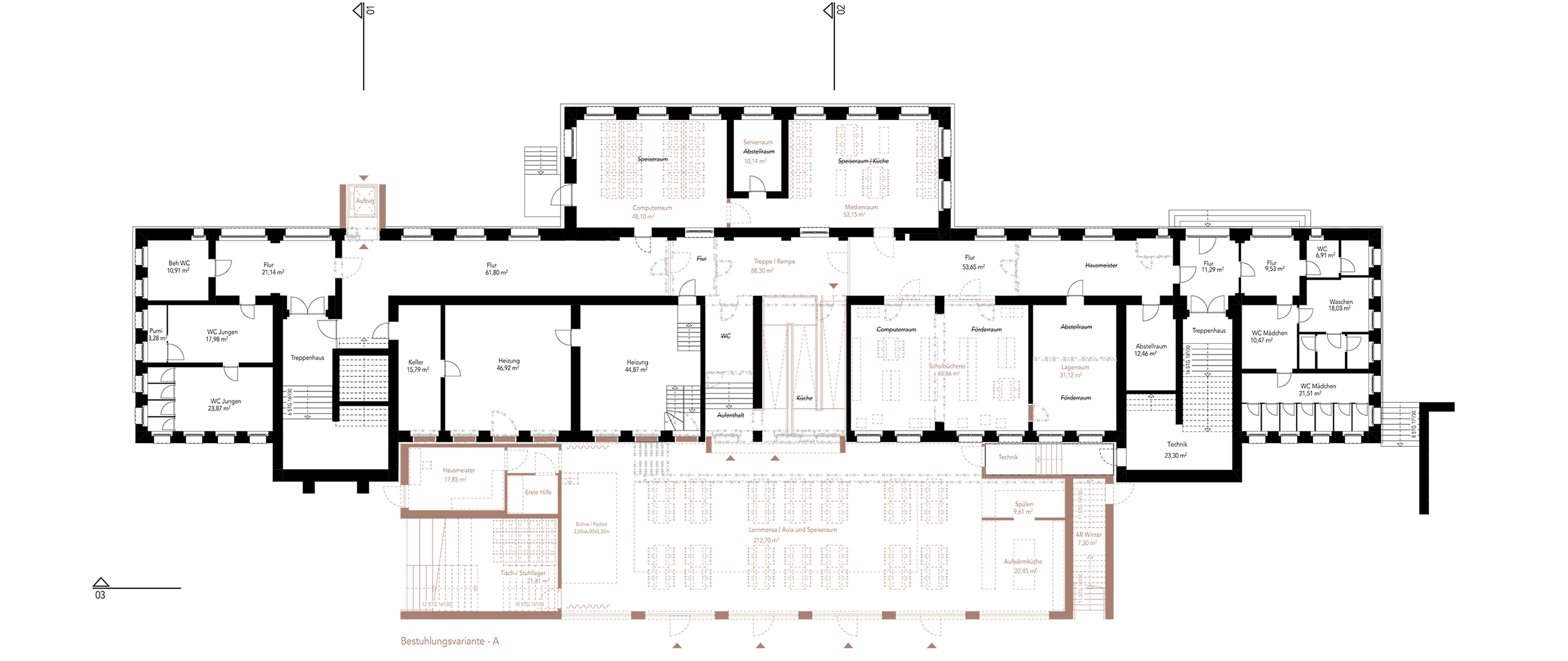
Sanierung und Erweiterung einer Grundschule
Ort
Mülheim
Projektzeitraum
2024
Architekturleistungen
LPH 1-2
















Erweiterung der GGS Hölterschule
Sanierung und Erweiterung einer Grundschule
Mülheim
2024
LPH 1-2














